31坪で叶える趣味と遊びの平屋
浜松市 31.69坪
#平屋 #勾配天井 #家事ラク
住まいのテーマは、「暮らしと趣味、どちらも大切にする家」。


延床面積31坪という限られた空間の中に、まるでスタジアムのような野球部屋と、静かに時を紡ぐ編み物スペースが共存。「趣味も暮らしも、どちらも妥協しない」ご夫婦の想いを、建築家のアイデアで叶えました。


実際の広さ以上にゆとりを感じられる空間構成で、暮らしを楽しむための遊び心あふれる平屋に仕上げています。

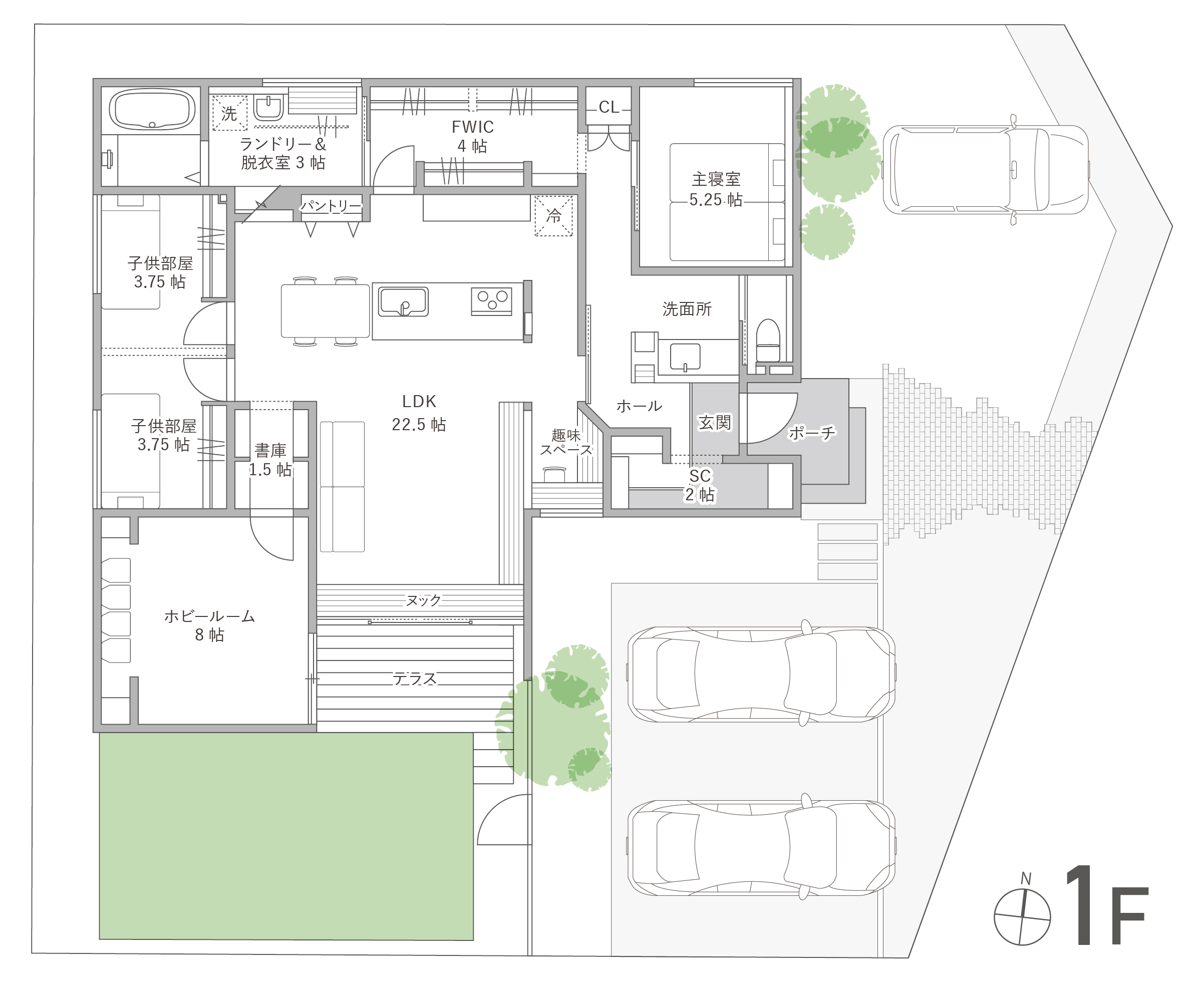
玄関ドアを開けると、高窓から自然光が降り注ぐ開放的なホール。そのすぐ脇には、靴だけでなく趣味のアウトドア用品や仕事道具もまるごと収まる、大容量のシューズクローゼットを配置しました。


ホールを抜け、建物の中心へと進むと広がるのが、開放感あふれるLDK。

高天井がもたらす伸びやかなLDKの窓辺には、ベンチのように寛げるヌック(腰掛けカウンター)を。大きな掃き出し窓はテラスへとフラットにつながり、晴れた日には内と外が一体となる、圧倒的な開放感を演出します。

リビングの一角には、奥様のための“お籠りスペース”を。お気に入りの毛糸が彩る、編み物専用の造作棚が、空間のアクセントです。キッチンからのアクセスも良く、家事と趣味をスムーズに行き来できるのも魅力。



ダイニングの脇、趣味部屋へと続く通路には、壁一面に本棚を設えた“書庫”を配置しました。お気に入りの本に囲まれた秘密基地のような空間です。

書庫の奥のガラス戸を開けると現れるのが、ご主人の夢を叶えた「野球部屋」です。素振りができるほどの広さを確保し、グローブやバットをディスプレイできる棚やベンチを備えた空間は、まるで専用スタジアム。

ガラス戸を介してLDKから中の様子が伺えるため、防音性を保ちながらも、家族の気配を感じられる配置です。

この家は、LDKへ向かう“表動線”とは別に、ホールから奥へと続く“裏動線”が通っています。

裏動線沿いには、水回りや収納に加え、静かに過ごしたい主寝室も配置しました。

生活感の出やすい家事エリアと、安らぎの寝室をこの裏動線にまとめることで、来客時の視線を気にすることなく、家事と休息をスムーズに行き来できる快適なゾーニングを実現しています。



土地面積 272.26㎡(82.36坪)
建物面積 104.75㎡(31.69坪)