平屋のように暮らす、四季を愉しむ和モダンの家
浜松市 32.69坪
#平屋 #中庭 #勾配天井 #収納充実 #家事ラク

閑静な住宅街に建つこちらの住まいは、“近隣の視線を気にせず、四季を感じながら穏やかに暮らす”という想いをカタチにした和モダンの家。
玄関は道路から見えにくい向きに配置し、格子窓から差し込む光が陰影をつくり出す、静かで落ち着いた佇まい。

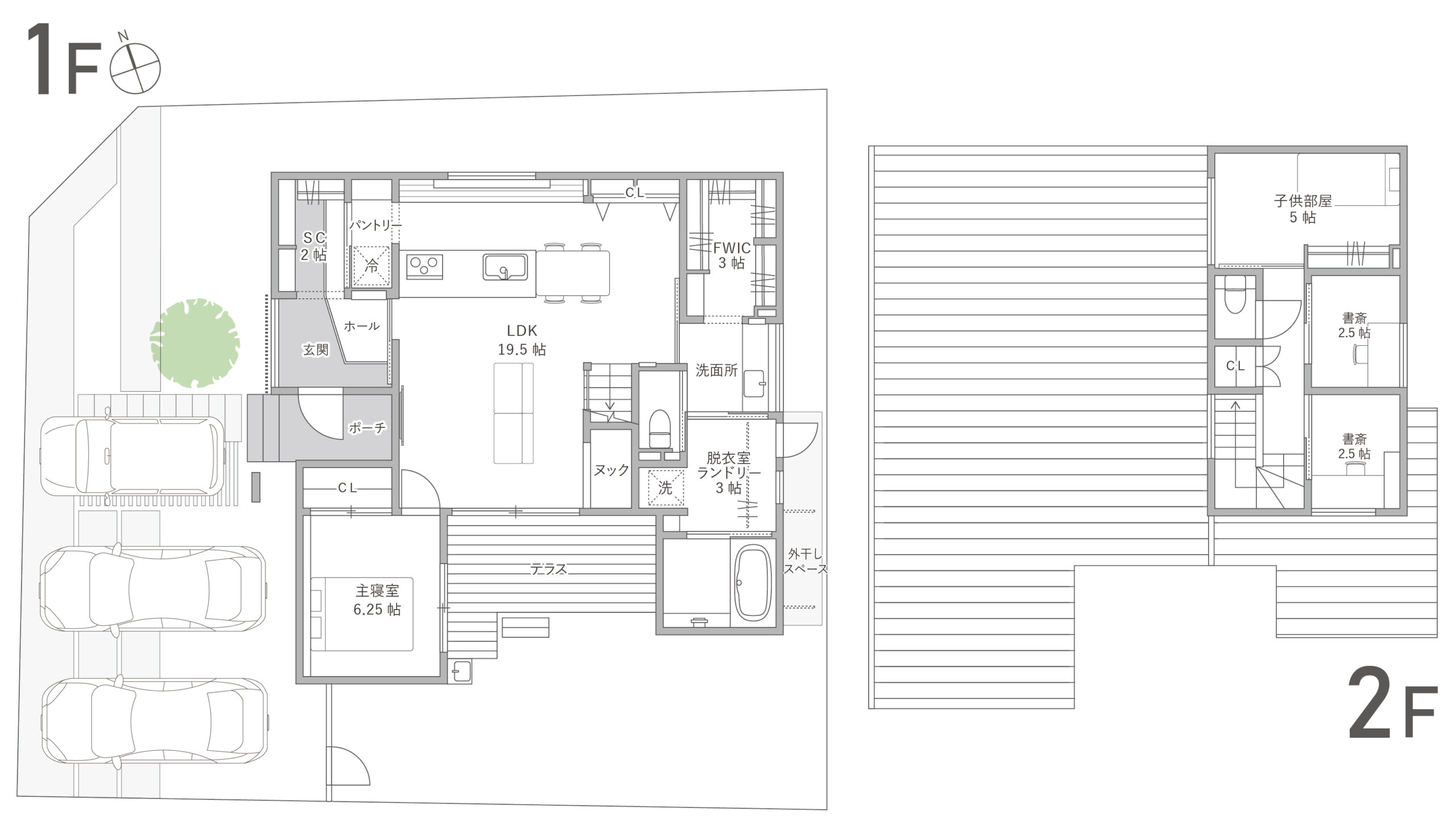
玄関には大容量のシューズクロークを設け、奥にはパントリーへとつながる裏動線を確保。帰宅後の荷物をスムーズに収納でき、生活感が表に出ないように工夫されています。

南側の庭へ大きく開いたLDKは明るく開放的。深い軒が夏の強い日差しをほどよく遮り、冬には暖かな光を室内へと取り込みます。


階段下の畳ヌックは、家族の気配を感じつつ、ほどよく籠れる小さな居場所。家族それぞれが思い思いにくつろげる空間です。

建物の形状を工夫して生まれた“囲われた庭”は、外部からの視線を気にせず過ごせる中庭のようなプライベート空間。ほどよい安心感の中で、季節の移ろいを身近に感じられます。


テラスを通じて内と外がゆるやかにつながり、窓を開ければ、風や光が軽やかに室内へ。自然を取り込みながら暮らす心地よさが広がります。

玄関 → パントリー → キッチンへと続く動線はコンパクトで快適。買い物帰りも効率よく片づけができ、
キッチンまわりはいつもすっきり整います。



水回りは東側へまとめ、LDKに生活感が出にくいよう配慮。
広さを確保したランドリーは、室内干し・外干しのどちらにも対応できます。外干しスペースは周囲から見えにくい位置に計画し、安心して干せる環境を整えました。

趣味スペースや子ども部屋は2階に、日々の生活の中心は1階へ。暮らしの核を1階にまとめることで、将来まで安心して暮らせる計画です。
家族構成やライフスタイルの変化にも柔軟に対応できる住まいです。



土地面積 199.66㎡(60.4坪)
建物面積 96.05㎡(29.06坪)